Jenn-Air Electric Wall Oven W30400BC Timer Repair

What is the timer/clock part number for the Jenn-Air W30400BC Electric Wall Oven?

Timer part number 71001799 for Jenn-Air W30400BC

The W30400BC Electric Wall Oven uses timer part number 71001799.

Do you have a failed Jenn-Air W30400BC control panel? Click here:

Request Appliance Timer Service

We can repair or replace your faulty Jenn-Air W30400BC timer.

W30400BC are also sometimes referred to using these Alternative Names/Model numbers

Maytag W30400BC Electric Wall Oven, Whirlpool W30400BC Electric Wall Oven

W30400BC Schematic and Wiring Diagrams

Control panel Parts diagram
W30400BC Electric Wall Oven Control panel Parts diagram
Body Parts diagram
W30400BC Electric Wall Oven Body Parts diagram
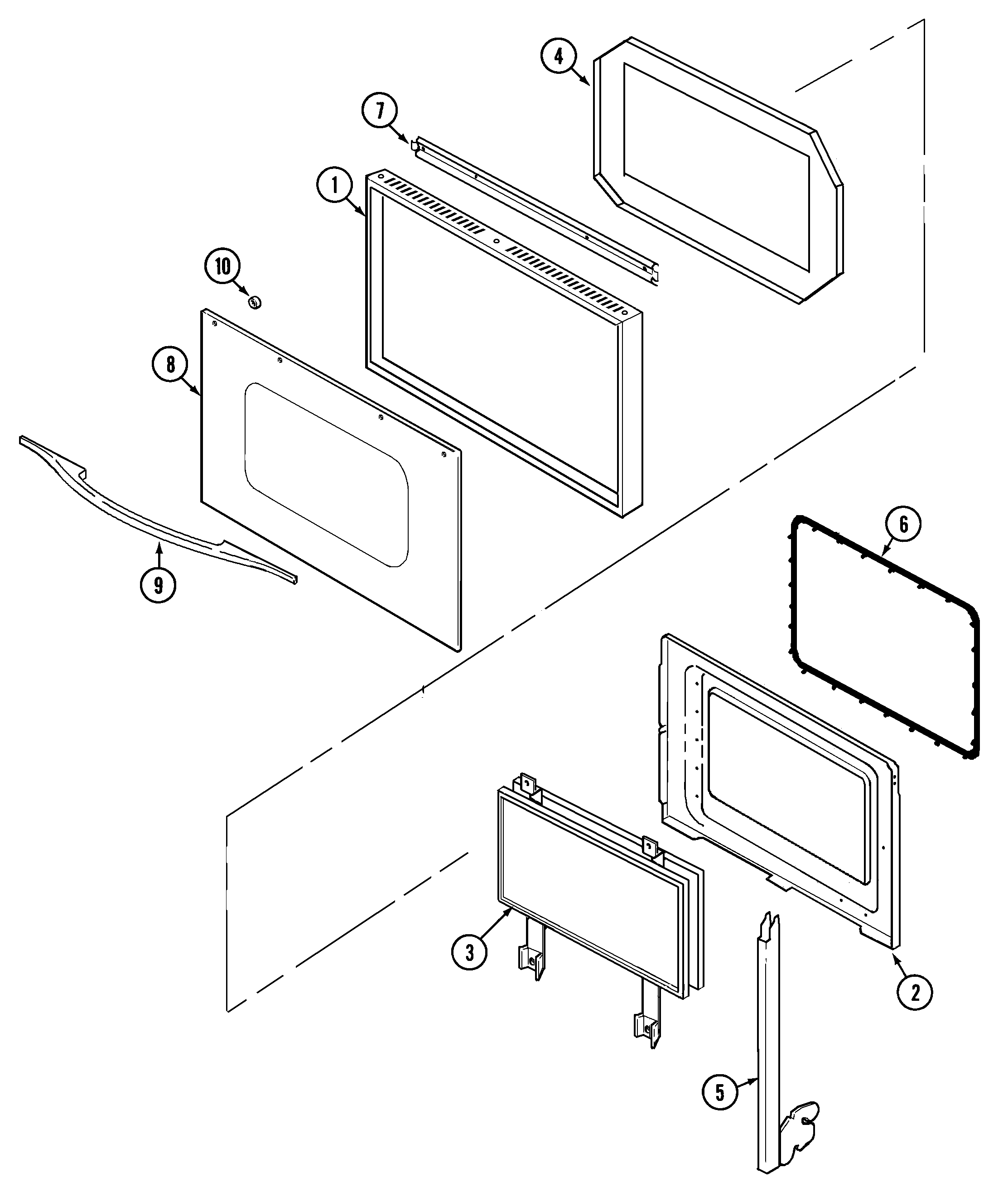
Door Parts diagram
W30400BC Electric Wall Oven Door Parts diagram
Internal controls Parts diagram
W30400BC Electric Wall Oven Internal controls Parts diagram
Oven Parts diagram
W30400BC Electric Wall Oven Oven Parts diagram
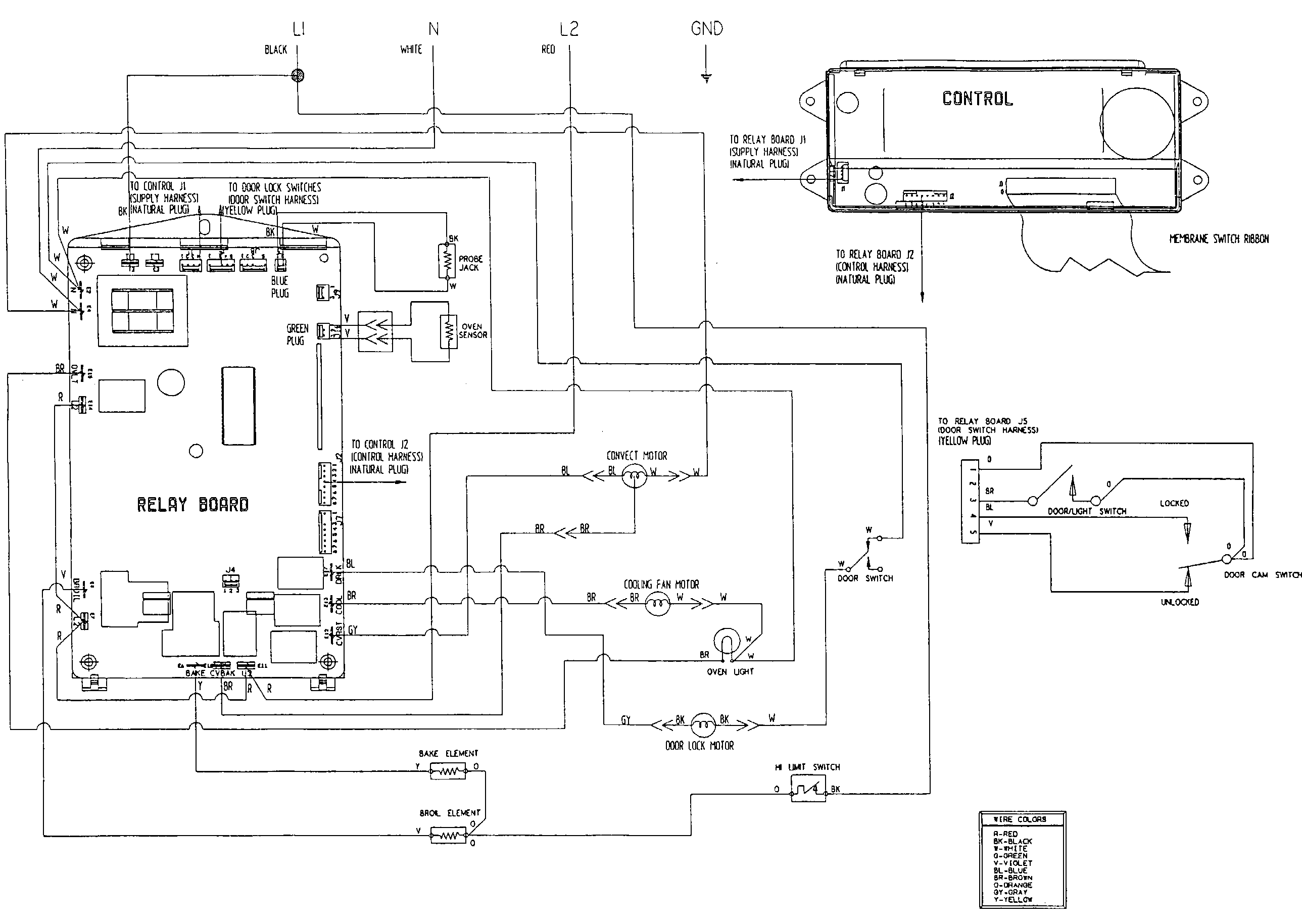
Wiring information Parts diagram
W30400BC Electric Wall Oven Wiring information Parts diagram

Recent Service Requests

CityProblem DescriptionResolution
Richmond, British ColumbiaCLOCK CONTROL BOARD dark -- RELAY BOARD Problem is that whenever Bake or Broil is selected, then the temperature and then Bake or Broil, NO failure code comes up - just relay clicking on /off? the display indicates oven was warming but the initial 100Deg C temp never changed. Elements checked out as OK i.e. resistance well within range. -- as to return shipping via fedex - i do have my own fedex setup; so would prefer to email you a FDX shipping label for the return shipment-if acceptable-your system does not offer a
'will call' option for return - return both items at the same time requested - thank you
Repaired
Richmond, British ColumbiaCLOCK CONTROL BOARD dark -- RELAY BOARD Problem is that whenever Bake or Broil is selected, then the temperature and then Bake or Broil, NO failure code comes up - just relay clicking on /off? the display indicates oven was warming but the initial 100Deg C temp never changed. Elements checked out as OK i.e. resistance well within range. -- as to return shipping via fedex - i do have my own fedex setup; so would prefer to email you a FDX shipping label for the return shipment-if acceptable-your system does not offer a 'will call' option for return - return both items at the same time requested - thank youRepaired
Guelph, Ontariooven does not work at all. I have 2 seaparate wall mounted ovens. One is ce no ompletely dead. it has no power. The clock is dead and it has no power. The second oven is now giving me problems (F5 error). I want to fix the one that is dead and then tackle the other one. The oven has 2 boards inside. I want to buy both boards. My phone # is 519- 822-7397 home and 519-835-7397 cell. I am 15 minutes away.Awaiting receipt of timer
Toronto, OntarioOriginally the problem was intermittent but then became permanent. Problem is that whenever Bake or Broil is selected, then the temperature and then Bake or Broil, the F5 failure code came up. When intermittent, the display indicated oven was warming but the initial 100Deg C temp never changed. Elements checked out as OK i.e. resistance well within range.Repaired
Markham, OntarioThe LED light is not workingRepaired

Common problems for Jenn-Air Electric Wall Oven W30400BC Timer Repair

Are you encountering a similar problem as them? Contact us now and we will try to help you fix your W30400BC timer-related problem.
We have a Jenn-Air W30400 oven that the temp. display is completely dim and the time appears to getting dimmer. The oven works but of cousre we can't really see the temp.. As I look at some of the earlier posts that appear to have the same problem, some of the recommendations are to replace the display (part number 695128) or replace the (EOC part number AP367441). Which part should I replace first or is there a way to tell what part I really do need?
control panel began dimming and eventually dimmed until nothing but black. All functions seem to be working fine. We continue to bake, clock works fine. Ding sounds when oven hot, clock dings when done. Just no display to read. Any ideas? Appreciate any help. Maybe this thing is too old to put money into. It's about 12 years old.
Jenn-Air Expressions Mod. W30400BC Replaced oven door springs, the door will not close tight, re there any adjustments.
Hello: Oven display began to fade and the the oven would not heat. So I replaced the clock/Display assembly. clock/Display is now working fine and seems to control everything....but I still get no oven heat/broil..nothing. Suggestions? Thermostat? Relay board? Just noticed that when I turn the oven on I hear a high pitched sound that sounds like it is coming from the relay board. Could a bad relay board cause the display to go bad? Ugh.
The control panel (clock) stopped working, therer was a buzzing noise behind control panel. I removed cover and found the relay board (controls the fan and the door lock) buzzing. I replaced the main control board. oven works but fan did not. After further checks found fan motor coils open, burnt and found that the relay board was not suppling voltage to the fan. At this point i am planning an replacing the relay board and the fan motor. any ideas what caused these problems?? Note: the door lock portion of the relay board works.
We have this appliance since 9 years, I got the control panel fading since 1 month, then I got a first error code FC Oct 29 with a continuous beep. I shutdown the main circuit breakers off/on then the error FC cleared. Oven works fine however the control panel is completely off now since this morning but oven works fine. According to Jenn-Air error codes: FC Communication error between boards Wiring harness or power relay board (PRB) There is 2 boards inside the control panel, the circuit Board clock and the Board Relay My question is which board should I replace first? I know how to use a voltmeter to troubleshoot?
Control panel has power - clock shows time. Cancel still beeps. All actions like bake and convection bake do not respond at all. No service manual seems available. Parts diagrams on line do not show the control panel. Found a clock module that is close but photo shows no keypad. Where can I get a service manual?
F4 error code on Jenn-Air W30400BC expressions built in oven When trying to preheat oven an error code of f4 flashes and the beeper beeps until you cancel it. What does the f4 flashing mean?
How do I get our Jenn Air wall oven W30400BC to stop beeping? It is reading "probe" in the display. We recently moved into this house and do not have a manual for the oven.