Bosch Built-In Electric Oven SC302 Timer Repair

What is the timer/clock part number for the Bosch SC302 Built-In Electric Oven?

Timer part number 492071 for Bosch SC302

The SC302 Built-In Electric Oven uses timer part number 492071.

Do you have a failed Bosch SC302 control panel? Click here:

Request Appliance Timer Service

We can repair or replace your faulty Bosch SC302 timer.

SC302 are also sometimes referred to using these Alternative Names/Model numbers

SC302T

SC302 Schematic and Wiring Diagrams

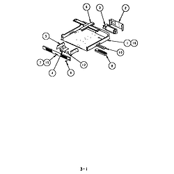
Oven assembly Parts diagram
SC302 Built-In Electric Oven Oven assembly Parts diagram
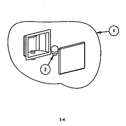
Back, side and trim Parts diagram
SC302 Built-In Electric Oven Back, side and trim Parts diagram
Convection motor assembly Parts diagram
SC302 Built-In Electric Oven Convection motor assembly Parts diagram
Module lamp assembly Parts diagram
SC302 Built-In Electric Oven Module lamp assembly Parts diagram
Top plenum control module Parts diagram
SC302 Built-In Electric Oven Top plenum control module Parts diagram
Mid plenum, 27 diagram
SC302 Built-In Electric Oven Mid plenum, 27 diagram
Oven module, non-convection 27 diagram
SC302 Built-In Electric Oven Oven module, non-convection 27 diagram
Oven module, convection 27 diagram
SC302 Built-In Electric Oven Oven module, convection 27 diagram
Base module 27 diagram
SC302 Built-In Electric Oven Base module 27 diagram
Door components (s272t) (sc272t) (scd272t) Parts diagram
SC302 Built-In Electric Oven Door components (s272t) (sc272t) (scd272t) Parts diagram
Door components (s301t) (s302t) (sc301t) (sc302t) (scd302t) Parts diagram
SC302 Built-In Electric Oven Door components (s301t) (s302t) (sc301t) (sc302t) (scd302t) Parts diagram
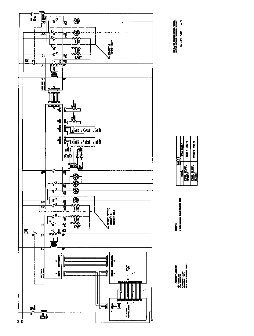
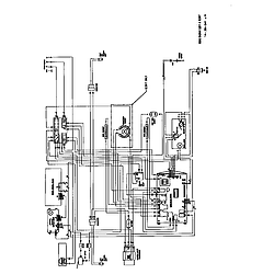
Wiring diagram Parts diagram
SC302 Built-In Electric Oven Wiring diagram Parts diagram
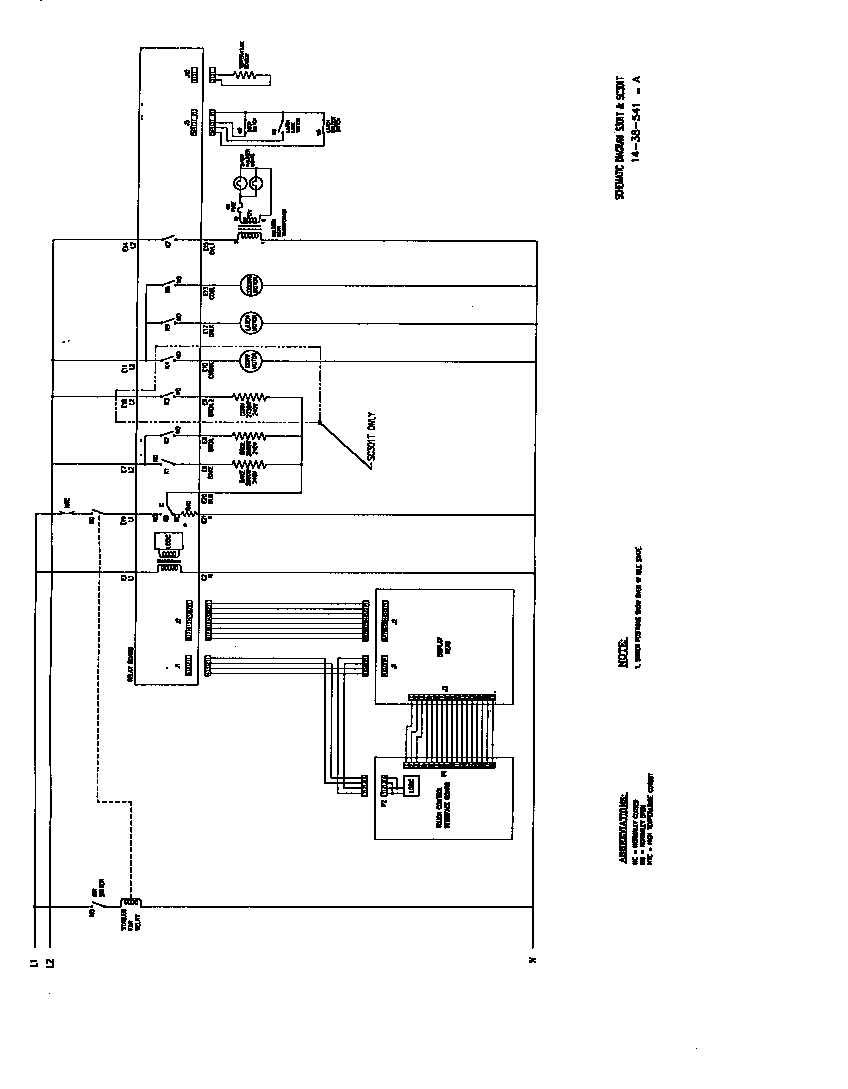
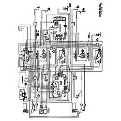
Schematic diagram Parts diagram
SC302 Built-In Electric Oven Schematic diagram Parts diagram
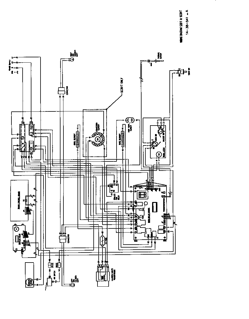
Wiring diagram, s301t and sc301t (s301t) (s302t) (sc301t) (sc302t) (scd302t) Parts diagram
SC302 Built-In Electric Oven Wiring diagram, s301t and sc301t (s301t) (s302t) (sc301t) (sc302t) (scd302t) Parts diagram
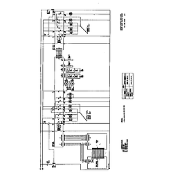
Schematic diagram, s301t and sc301t (s301t) (s302t) (sc301t) (sc302t) (scd302t) Parts diagram
SC302 Built-In Electric Oven Schematic diagram, s301t and sc301t (s301t) (s302t) (sc301t) (sc302t) (scd302t) Parts diagram

Recent Service Requests

CityProblem DescriptionResolution
Cohasset, Massachusettsthe numbers are dim and unreadableAwaiting receipt of timer
Shreveport, LouisianaThe display is very dim.Awaiting receipt of timer
Toronto, OntarioMy upper oven's bake feature does not work. Broil works but the lower element does not. I replaced the element with a new one so I know it is not the element.Repaired
Frankfort, IllinoisIt started with the F7 code and then the numbers 1,2,3 did not work so we could only set the oven to 400 degrees. Then we had an E5 code indicating control board clock fault.Beyond Repair
MANTECA, CaliforniaCLOCK/DISPLAY BOARD NOT WORKINGRepaired
MISSISSAUGA, OntarioI have a built in Thermador double oven. The timer was dim for a long time now it does not show anything and even I cannot turn ON any ovens, not lower oven not upper oven.
Label on timer says:
100-01044-01 CN: 14-38-995
CHEAD DBL SN: 47327 02045
Repaired
TOPANGA, CaliforniaTime readout got dimmer and dimmer, then got f1 and all went dead a few hours later. Now nothing works. About 5 years ago when the dimmer did the same thing, I replaced a capacitor and it worked for 5 years, I doubt the board is repairable, but would rather have a new or reconditioned unitAwaiting receipt of timer
Lancaster, CaliforniaI can no longer read the temperatures on the LED screen. I am also having problems with the upper oven maintaining heat, but suspect that may be the element going out. I am replacing the element also. Thank youRepaired
MADISON, MississippiUpper convection oven does not heat

Serial Number for oven is 82050590

Please provide pricing for reburbished board as well as new board and also returned board.

I am also interested in price for new blower fan motor which is part #487020

THANK YOU!!
Awaiting receipt of timer
Rockledge, FloridaVery faint digital display. Oven works fine.Repaired
Richmond, Virginiatop oven won't workRepaired
Reno, NevadaDim displayRepaired
Richmond, Virginiatop oven won't workRepaired
West Palm Beach, FloridaThe clock/timer got progressively more dim until it finally became completely unreadable.Awaiting receipt of timer
Pismo Beach, CaliforniaDim and/or not readable display.Awaiting receipt of timer
West Palm Beach, FloridaThe clock/timer got progressively more dim until it finally became completely unreadable.Awaiting receipt of timer
Orlando, FloridaTimer display does not illuminate. Stove works, touchpad functions, but the display is out. I would like to purchase a new or reconditioned timer. My guess is the caps that send the voltage to the florescent display have crapped out. It seems a design flaw for most caps are only good to about 125 degrees C. Is there a fan kit for that board to try to chase some of the heat away?Awaiting receipt of timer
Sandy, UtahRecurring problem with this model. Parts no longer available.Awaiting receipt of timer
MONSEY, New YorkNOT HEATING AND NO DISPLAYBeyond Repair
Trussville, AlabamaDISPLAY NOT READ ABALE. DIM OR OUT COMPLETLY.Repaired

Common problems for Bosch Built-In Electric Oven SC302 Timer Repair

Are you encountering a similar problem as them? Contact us now and we will try to help you fix your SC302 timer-related problem.
My oven panel has no lights. Information on circuit board as follows: TouchSensor Technologies LLC POO840B2 US PATENT NO.(NNN) NNN-NNNN BSH P/N 16-11-381 TST P/N Z00820GT REV OD2 What are your suggestions for having this corrected? Dallas Pittman XXX@XXXXXX.XXX (NNN) NNN-NNNN Houston, Texas 77082
display under the word thermador is not on. Oven works otherwise. how do you repair the display?
i have a thermador sc302 ts double wall oven. The elements on the top oven do not heat up. what is wrong?
what error code 302 ricoh aficion 2016 when i copy a page i find error code like 302
error sc 302
hi, i hope a techie can help me out here. my thermador oven model gsc30cvwc's display is not working. for some time, the display has had a problem. used to work on and off... sometimes slamming the oven door would cause the display to flicker on. and it would stay on long enough to set the oven... and sometimes it would flicker back off. now it seems that the display doesnt work at all. what could be the problem? what part do i need? is the part available? how can i get it repaired?...how do i take the thing apart checking by your parts diagrams, it seems that the part in question is part no. 12 from diagram 4...clock, oven control, 30 in. oven...part no. AP3194824...manufacturer bosch, man. no. 487603. now quick question...how does this part go bad? and how is it that it used to flicker on and off? seems like a loose connection... so, can i just dissassemble and fix it?
Error code SC302 What does this mean...color Laser printer LP 020C Lanier
ricoh afficio 1015 code error, appearing sc302 on screen
Thermador double oven SC302 Fault code F34 I replaced the board last year. This holiday season, the fault code came back. Is this oven not to be used for cooking?