Frigidaire Range FGF379WECS Timer Repair

What is the timer/clock part number for the Frigidaire FGF379WECS Range?

Timer part number 316080102 for Frigidaire FGF379WECS

The FGF379WECS Range uses timer part number 316080102.

Do you have a failed Frigidaire FGF379WECS control panel? Click here:

Request Appliance Timer Service

We can repair or replace your faulty Frigidaire FGF379WECS timer.

FGF379WECS are also sometimes referred to using these Alternative Names/Model numbers

Electrolux FGF379WECS Range

FGF379WECS Schematic and Wiring Diagrams

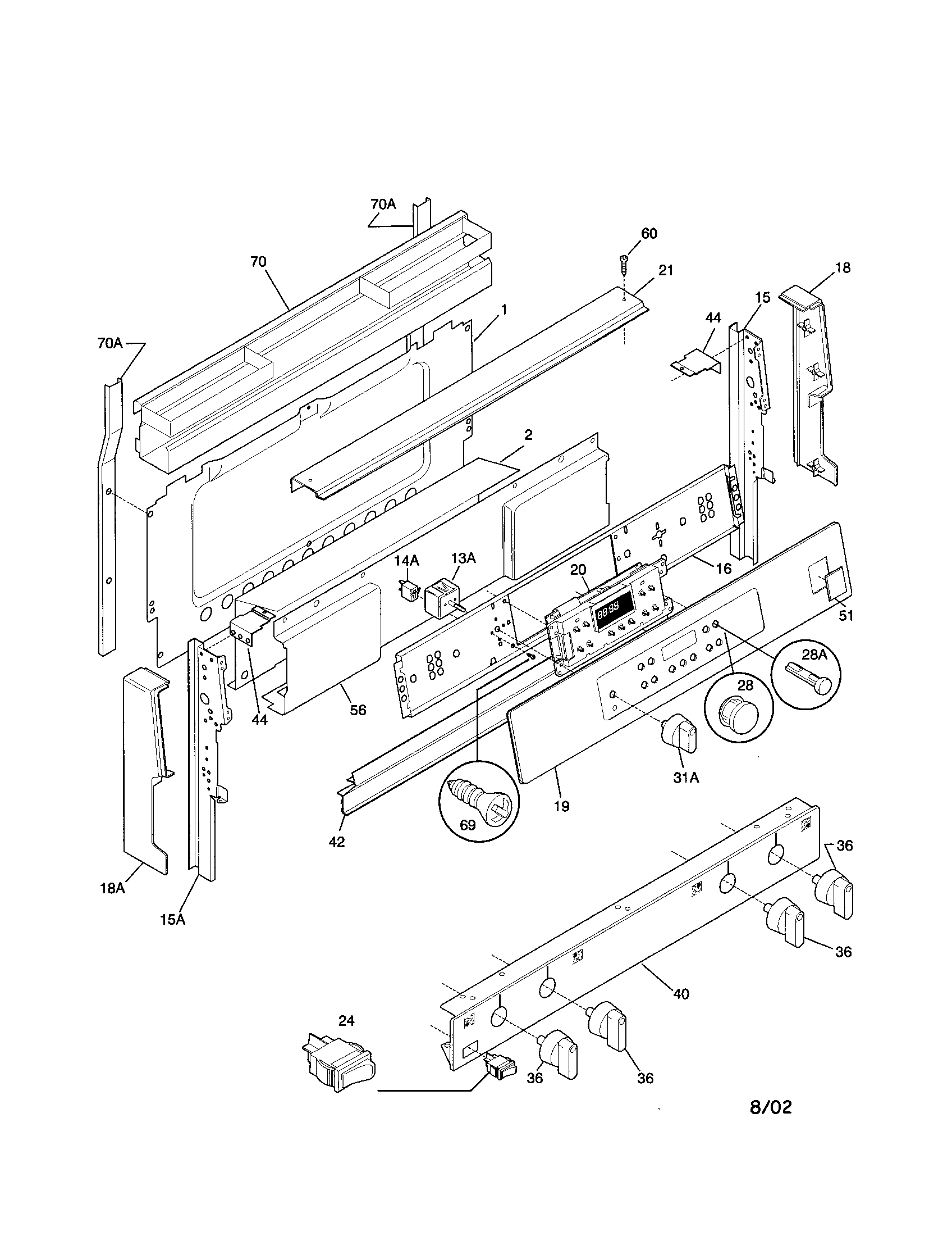
Backguard Parts diagram
FGF379WECS Range Backguard Parts diagram
Burner Parts diagram
FGF379WECS Range Burner Parts diagram
Body Parts diagram
FGF379WECS Range Body Parts diagram
Top/drawer Parts diagram
FGF379WECS Range Top/drawer Parts diagram
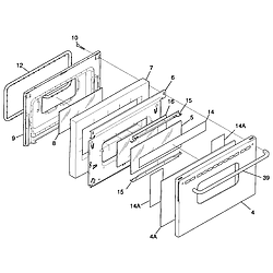
Door Parts diagram
FGF379WECS Range Door Parts diagram
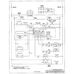
Wiring diagram Parts diagram
FGF379WECS Range Wiring diagram Parts diagram

Recent Service Requests

CityProblem DescriptionResolution
Mobile, AlabamaLights are dim and oven does not heat properlyAwaiting receipt of timer
Somerville, MassachusettsLCD Display is very dim. Can barely see the clock time (green) and oven tempertarue setting and operating temp (orange) is impossible to read now. My stove is the gas model.

Please be sure I am ordering the correct part.

Assuming if you don’t have new timer this is for a reconditioned one. Thank you. Great that there is a fix for this issue!
Replaced with reconditioned timer
Milwaukie, OregonDimmed LCD. Clock still visible, but oven temp is no longer visible.Repaired
Pine Brook, New JerseyDim readout.Repaired
LOUISVILLE, KentuckyDisplay is dim and unreadableAwaiting receipt of timer
Almonte, OntarioNo fault codes. Unit is operating but the display is dim and the oven temperature display is very dim.Repaired
Beaverton, OregonDim display, unable to set oven temperature etc...Repaired
San Francisco, Californiadisplay does not light upAwaiting receipt of timer
park city, Utahvery faint display
cannot set oven temp
cleaning appears to be ok
oven heats to unknown temperature
Repaired
Vashon, WashingtonThe lower buttons no longer work. I can still use the button for broil or bake, clock setting, timer and increasing the temperature. I cannot lower the temperature or turn the oven off.Awaiting receipt of timer
Vashon, WashingtonThe lower buttons no longer work. I can still use the button for broil or bake, clock setting, timer and increasing the temperature. I cannot lower the temperature or turn the oven off.Awaiting receipt of timer
Epping, New HampshireFaint lights can only be seen if it's pitch black in the room.Replaced with reconditioned timer
Chicago, IllinoisTemp display does not workAwaiting receipt of timer
Staten Island, New YorkSTOVE TEMP MELTED KNOBS ON TIMERAwaiting receipt of timer
Berthoud, ColoradoDisplay for oven not readable. The red display , also check calibration of unit.temps run low on oven.Repaired
Alexandria, VirginiaFor months, the LED display was very dim (nearly unreadable). Then the display went dead. No sounds emit when pressing buttons to set temp or cancel. Tested the outlet, and the outlet is fine.Replaced with reconditioned timer
Grimsby, Ontariodisplay is very dim. Time can be read (green/blue) but oven temp is barely readable (red/orange)

Looking for the most feasible solution of control/timer replacement or repair of display.
Awaiting receipt of timer
Southbury, ConnecticutThe display is very dim and almost unreadableRepaired
Lockport, IllinoisTimer functions correctly, however the display LCD is extremely dim where the oven temp and ON indicator are displayed. I had a board technician replace all capacitors but no changes were seen.Repaired
Richmond Hill, OntarioDisplay dimmed over time and is now blank. Oven settings did function while dim, but no longer works since display went blank. No longer beeps when pressing any buttons.Repaired

Common problems for Frigidaire Range FGF379WECS Timer Repair

Are you encountering a similar problem as them? Contact us now and we will try to help you fix your FGF379WECS timer-related problem.
Frigidaire FGF379WECS gas oven: Ignitor ceramic Frigidaire FGF379WECS gas oven: One ignitor ceramic is broken and ignitor no longer works. How do I get access to replace it? This is on one of the small burners.
I have a Frigidaire Gallery Oven Professional Series, I don't have the model number. In trying to self clean my oven, I accidentally pressed something that engaged the oven door lock. Now I can't close my oven door, the panel indicates 'locked' and pressing cancel does nothing. I tried turning off the oven at the breaker...it was off for 5 minutes. When I turned it back the on, the problem still exists. Any thoughts?
The New clock clock I Purchased Does Not Come Witht He Shafts (buttons) For The Holes. New Shafts Cost Approx $13 Each. How Can I Remove The Shafts From Old One To Place In Newone??? And Why Doesn't It Specifiy You Need These When Purchasing This Part!!!
Model NO. FGF379WECD. Serial NO. VF65008987 I would like to know how old this range is. this is a fridigaire gas range.
Model FGF379WECS - cannot turn off broiler. "Cancel" button not "Cancel" button not working. How do I turn it off.
My oven won't stay lite, it started not reaching the temp I set it at then it goes out after it on for 10 min. Fregidaire Gallery Proff series Model #FGF379WECS