What is the timer/clock part number for the Frigidaire FCS388WECA Dual Fuel Range?
The FCS388WECA Dual Fuel Range uses timer part number 318012903.
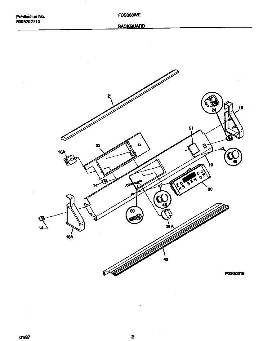
Do you have a failed Frigidaire FCS388WECA control panel? Click here:

We can repair or replace your faulty Frigidaire FCS388WECA timer.
FCS388WECA are also sometimes referred to using these Alternative Names/Model numbers
Electrolux FCS388WECA Dual Fuel Range
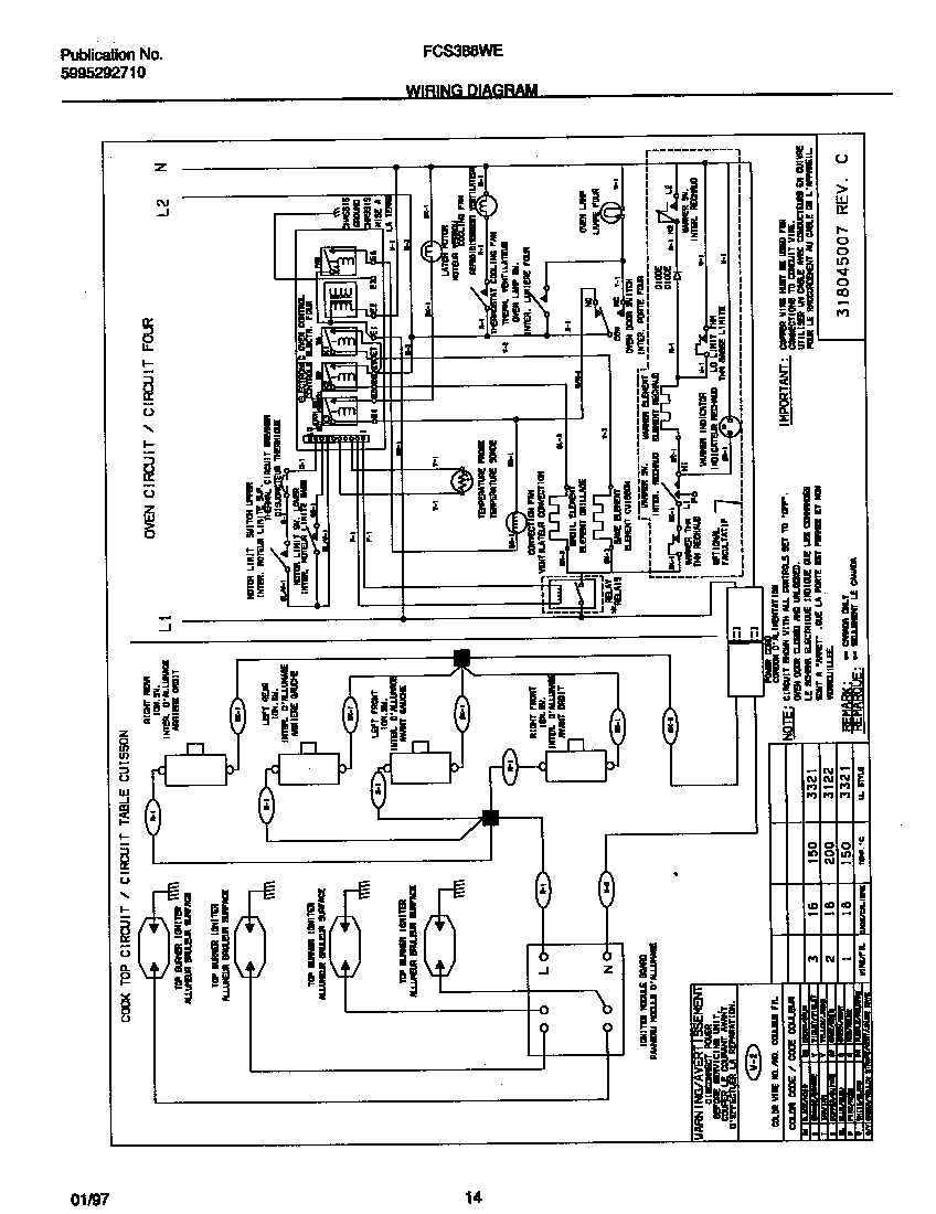
FCS388WECA Schematic and Wiring Diagrams
| City | Problem Description | Resolution |
|---|
| White Lake, Michigan | Dim temperature display | Repaired |
| mankato, Minnesota | oven heats slowly constantly clicking | Repaired |
| Mankato, Minnesota | Oven heats slowly | Repaired |
| Finksburg, Maryland | Timer is simply dark, does not power up. No display. | Repaired |
| CATAUMET, Massachusetts | WILL NOT EXCEPT ANY COMMANDS OTHER THAN SET CLOCK. DISPLAY GOES BLACK WHEN SELECTING BAKE OR VARI BROIL | Repaired |
| Riverside, Connecticut | stove display/clock is very dim | Awaiting receipt of timer |
| Fort Lauderdale, Florida | If you have a reconditioned or new in stock, please give price so we can decide if we want to just buy.
Otherwise, we can send in our board - the electric to the oven is working (so it's not the house fuse) but it does not respond pressing any buttons, we had an electrical storm and the power was flickering off/on over and over and the oven board went black after 3 or 4 cycles of this - fried.
* If we have to remove the board, please send a link to how to remove it if possible
Thanks! | Awaiting receipt of timer |
| Dallas, Texas | Control is so dim I can't hardly read it. | Awaiting receipt of timer |
| Dallas, Texas | Control is so dim I can't hardly read it. | Awaiting receipt of timer |
| Dallas, Texas | Control is so dim I can't hardly read it. | Awaiting receipt of timer |